Voltar
para lista

Ponto Comercial para Alugar, Alphaville Empresarial, 2800 m² por R$ 68.000,00

Alphaville Empresarial - Barueri - Grande Sao Paulo

R$ 68.000,00

  • IPTU: R$ 5.607
- quarto
- suíte
5 vagas
2800 m²
- quarto
- suíte
5 vagas
2800 m²
Atualizado em: 07/12/2025 | Código: 53033

Alphaville Empresarial - Barueri - Grande Sao Paulo

Descrição do Imóvel

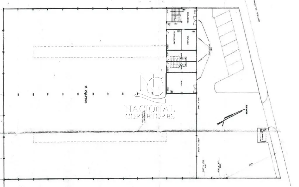
Galpão Industrial para Locação | 2.800 m² | Alphaville - Barueri/SP Galpão industrial localizado em Alphaville - Barueri, uma das regiões mais valorizadas e estratégicas da Grande São Paulo. Com estrutura moderna, amplo espaço fabril e fácil acesso às principais rodovias, o imóvel é ideal para empresas que buscam eficiência, segurança e infraestrutura completa. Características do Imóvel  Área total de terreno: 3.900 m²  Área construída total: 2.800 m²  Área fabril: 2.400 m²  Área administrativa/escritórios: 333 m²  Pé-direito: 8 metros  Capacidade do piso: 4 ton/m²  Entrada trifásica padrão 75 kva  Sem condomínio Estrutura e Acabamentos  Construção em pré-moldados de concreto com acabamento em alvenaria e cobertura metálica de zinco;  Mezanino com piso em pavilfex;  Banheiros revestidos em azulejos;  Estacionamento com aproximadamente 15 vagas (5 cobertas);  Portões basculantes em ferro com acesso para caminhões pela frente, laterais e fundos;  Acesso exclusivo com entradas independentes de água e energia elétrica. Zoneamento e Uso  ZEPI-2: Zona destinada a projetos especiais de integração de uso misto;  SUPI/A-5: Setor de uso predominantemente industrial;  ZUPI-1: Classificação da Região Metropolitana de São Paulo. Encargos  IPTU 2025: R$ 5.607,48 (anual)  Aforamento: R$ 22.683,04 (anual)  Sem taxa de condomínio Destaques  Localização estratégica com fácil acesso à Rodovia Castelo Branco e Rodoanel Mário Covas;  Estrutura pronta para operação imediata;  Ampla área fabril e administrativa com alto padrão construtivo;  Excelente custo-benefício em Alphaville.COD.53033 A Nacional Corretores é referência em venda, aluguel e administração de imóveis residenciais e comerciais no ABC paulista, especialmente em Santo André. Conta com uma excelente equipe de especialistas, prontos para lhe atender. Agende sua visita com um dos nossos corretores e venha conhecer!!!

Todas as informações deste anúncio são fornecidas pelo anunciante.
O Portal ZO Imóvel fica isento de qualquer responsabilidade.
Creci - Procure sempre um corretor credenciado.

Blog do Grupo SP Imóvel

Confira a ampla pesquisa que realizamos sobre financiamento imobiliário em nosso blog. Clique nos links abaixo:
Contate o anunciante


Visualizações do imóvel
40 pessoas visualizaram esse imóvel recentemente
CRECI: 25.249-J

Nacional Corretores


Ver telefone e
dados do anunciante
(11) 4994...
(11) 4994-8763
Contate o anunciante
Código do imóvel:
53033
Ao ligar, diga que viu este
anúncio no Portal ZO Imóvel
Endereço do anunciante:

Av. Martim Francisco, 226
Sobreloja - Parque das Nações - Santo André

Anúncios encontrados 500 anúncios encontrados
Tempo de cadastro da imobiliária Desde agosto de 2012
Contate o anunciante