Voltar
para lista

Galpão / Salão para Alugar, Vila Leopoldina, 2500 m² por R$ 120.000,00

Vila Leopoldina - São Paulo - Zona Oeste

R$ 120.000,00

  • IPTU: R$ 24.964
- quarto
- suíte
12 vagas
2500 m²
- quarto
- suíte
12 vagas
2500 m²
Atualizado em: 24/11/2025 | Código: FI8935

Vila Leopoldina - São Paulo - Zona Oeste

Descrição do Imóvel

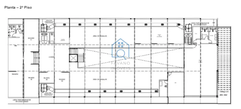
Aluga-se Galpão Comercial para monousuário na Vila Leopoldina com 2.500 m². FACILITIES:
A região conta com infraestrutura de restaurantes, bancos, farmácias e demais serviços; e está próximo ao Shopping Villa Lobos (12 minutos para ir, 6 minutos para voltar).O imóvel possui área útil interna de aproximadamente 2.500m² (fora as vagas de garagem e áreas comuns), com as seguintes características:
Galpão antigo totalmente restaurado, com recepção e áreas de convivência no piso térreo, e 2 andares de mezaninos metálicos com piso de steel deck e pé direito duplo no vão central, com blocos de escritórios nas laterais, e divisórias em vidro;
Finíssimo acabamento;
Iluminação natural através de lanternins na parte mais alta do telhado, com esquadrias novas;
Ar-condicionado central;
Entrada privativa de veículos e pedestres, com portas automatizadas, que permite a entrada de caminhões para entrega de equipamentos;
Entrada de pedestres também pela Avenida Mofarrej, 619;
Instalação elétrica e hidráulica;
29 banheiros com louças e metais;
Infraestrutura de dados e telefonia já instalados;
Garagem: 12 vagas internas + área demarcada para motos e bicicletas;
Portaria blindada com sistema de segurança 24 horas (telefone, portões de entrada e sistema de CFTV), com banheiro interno;
Cabine primária com transformador de 750KvA em 380V, e cabine secundária para 220V;
Grupo gerador com capacidade para 500KvA;
Estrutura completa de equipamentos de combate a incêndio;
O Imóvel possui AVCB e Habite-se.

Todas as informações deste anúncio são fornecidas pelo anunciante.
O Portal ZO Imóvel fica isento de qualquer responsabilidade.
Creci - Procure sempre um corretor credenciado.

Blog do Grupo SP Imóvel

Confira a ampla pesquisa que realizamos sobre financiamento imobiliário em nosso blog. Clique nos links abaixo:
Contate o anunciante


Visualizações do imóvel
55 pessoas visualizaram esse imóvel recentemente
CRECI: 27.507-J

Favano Imóveis


Ver telefone e
dados do anunciante
(11) 2064...
(11) 2064-9331 / 95524-6268
Contate o anunciante
Código do imóvel:
FI8935
Ao ligar, diga que viu este
anúncio no Portal ZO Imóvel
Endereço do anunciante:

Rua Silva Bueno, 599
Sala 205 - Ipiranga - São Paulo

Anúncios encontrados 990 anúncios encontrados
Tempo de cadastro da imobiliária Desde maio de 2019
logo instagram Instagram da imobiliária
Contate o anunciante